[at] loop
+442031764855
+447791667233

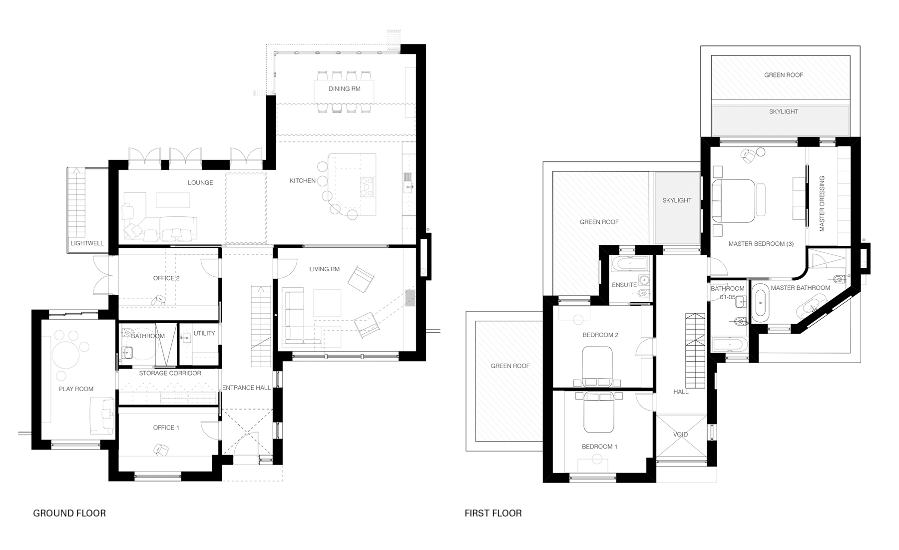
project Dulwich Family Home

Replacement new build house on a challenging site within the Dulwich Estate for a private client.

The proposed house is a new 5,000 sq ft home with basement. The carefully articulated massing, design and reorientation of the building is a rational response to the site constraints. ‘Arts and Crafts’ architectural features influenced the design and material palette to sensitively embed the new building within the local context.